

雪おろしの不安に縛られない
新しい暮らしのかたち
連日のように降り続く大雪。
「雪おろしをしたくても人手が足りない」
——そんな声が増えています。
そこで私たちは提案します!
“雪おろしがいらない家”
という新しい選択肢。
耐雪3mの安心構造に、
エアコン1台で家じゅう快適な全館空調。
温度差の少ない、
身体にも家計にもやさしい平屋が完成しました。

冬の暮らしに
こんな不安はありませんか?

子供に「雪おろし気をつけてね!」
と言われハッとする。

冬の電気代の明細を見て、
思わず「えっ?」と2度見。

屋根の上に積もった雪を見て、耐えられるのか心配。
そんなお悩みを、まるっと解決。
安心・快適な “新しい平屋”ができました!
「雪国でものびのびと暮らせる」
そんな住まいをお探しの方にご提案したい、
“新しい平屋”です。
雪おろし不要・エアコン1台で 快適な住まい、それがこの“全館空調の平屋”です。
選ばれる5つの理由
1.自然に溶け込むシンプルなフォルム
コストダウンを図りながら、バランスのよい外観
黒を基調とした屋根や軒先に、砂岩の風合いを感じさせるダークブラウンの外璧サイディングを用い、上質な素材感を醸し出します。軒の深い切妻屋根は、建物に豊かな陰影を与え、奥行きのある佇まいを演出します。


2.業界最上級にシンプルな全館空調システム
小屋裏に設置したエアコン1台稼働で家全体を空調
住宅の外周部をすっぽりと断熱することで、家の中を開放的な一つの空間として、冷・暖房を充填させることができます。その結果、部屋だけで なく、廊下や洗面脱衣所、トイレまで快適な温度を保ちます。
2.業界最上級にシンプルな全館空調システム
小屋裏に設置したエアコン1台稼働で家全体を空調
住宅の外周部をすっぽりと断熱することで、家の中を開放的な一つの空間として、冷・暖房を充填させることができます。その結果、部屋だけで なく、廊下や洗面脱衣所、トイレまで快適な温度を保ちます。

3.柱は全て4寸角使用、耐久性・長寿命の安心感
倒壊リスクを軽減する 4 寸角柱
4寸角柱は一般的な3.5寸(約10.5cm)柱 に比べて断面積が約30% も大きく、圧倒的な剛性と粘り強さを発揮します。特に地震時の揺れに対して、倒壊リスクの軽減につながります。


4.樹脂サッシと複層ガラスで寒さ・暑さ対策も万全
オール樹脂枠トリプルガラス(オール樹脂枠ペアガラス併用)
窓から住宅を高断熱化することで、エネルギー消費の削減はもちろん、 室内の温熱環境を改善し快適な住環境を実現させます。
◀たてすべり出し窓+FIX連窓[16513サイズ]ダブルLow-E日射遮蔽型ブルーアルゴンガス入
熱貫流率
0.82W/㎡・K
4.樹脂サッシと複層ガラスで寒さ・暑さ対策も万全
オール樹脂枠トリプルガラス(オール樹脂枠ペアガラス併用)
窓から住宅を高断熱化することで、エネルギー消費の削減はもちろん、 室内の温熱環境を改善し快適な住環境を実現させます。
たてすべり出し窓+FIX連窓[16513サイズ]ダブルLow-E日射遮蔽型ブルーアルゴンガス入▼
熱貫流率
0.82W/㎡・K

5.使い勝手が良く、洗練されたデザインの水廻り

大きなものも小さなものも、たっぷり賢くしまえる収納。
上質な高級感を演出するデザインと新たなスタイルをプラス。

優れた意匠で上質感あふれる空間。自動洗浄機能やウルトラファインバブルシャワ ーなどの設備や、安全性にもこだわった親切設計。
間取りと価格
- 24.60坪
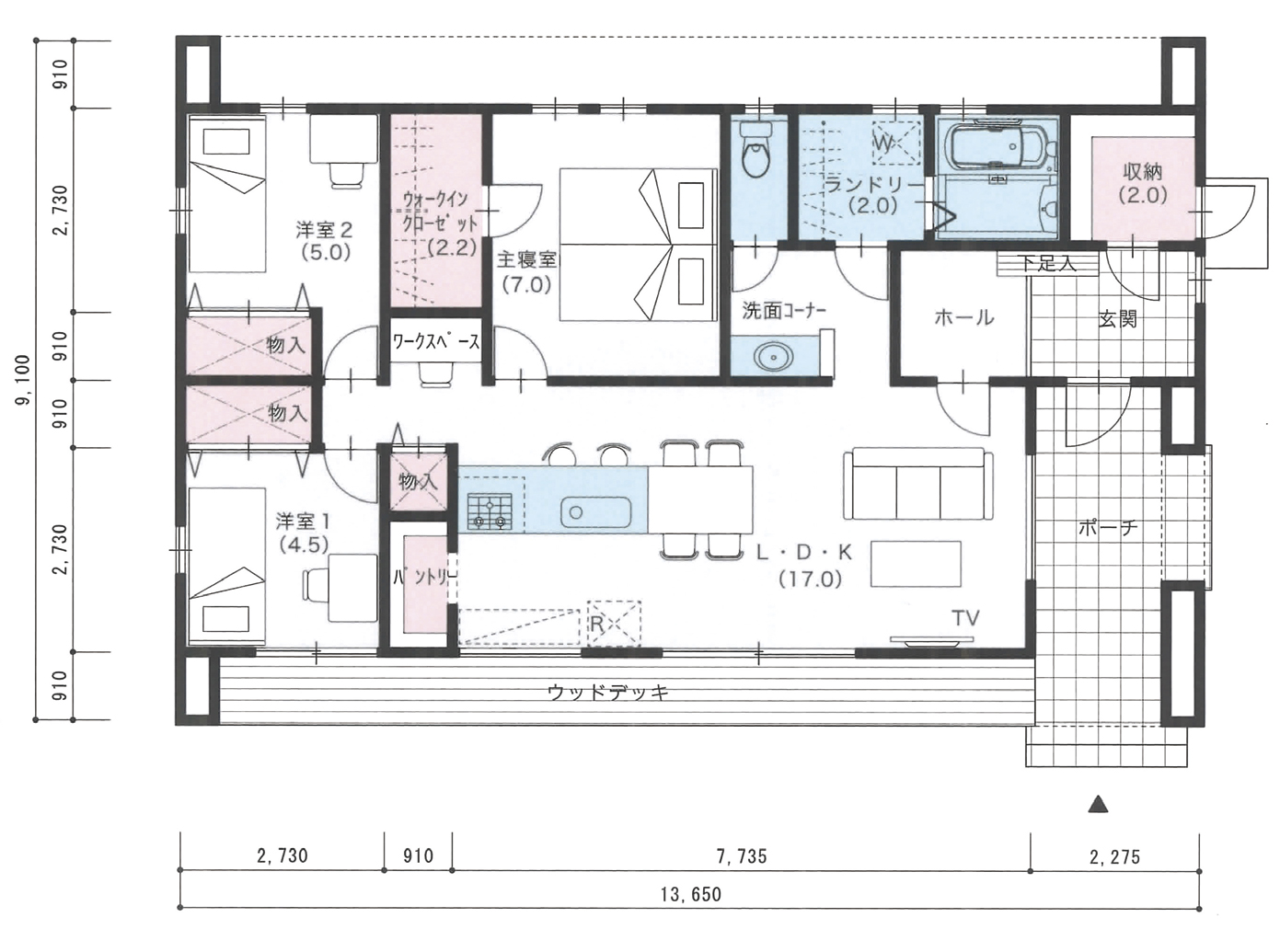
2LDKの住まい - 33.90坪
3LDKの住まい - 37.60坪
4LDKの住まい

2,520 万円 (税込)_
施工面積 ⋯ 81.32㎡ (24.6坪)
収 納 ⋯ 14.07㎡ (4.25坪)
収 納 率 ⋯ 17.33% (00.0坪)
表示金額に含まれているもの
■各申請費用 ■ボーリング調査費用 ■全館空調設置(エアコン含む)
■現場管理費
表示金額に含まれていないもの
■地盤改良費用 ■カーテン ■ウッドデッキ ■カーポート ■外構工事
こんな方におすすめ
■ ご夫婦+ゲストルー ムのお家
■ ご夫婦+お子さま1人のお家

2,712 万円 (税込)_
施工面積 ⋯ 112.06㎡ (33.9坪)
収 納 ⋯ 12.83㎡ (3.88坪)
収 納 率 ⋯ 14.08% (00.0坪)
表示金額に含まれているもの
■各申請費用 ■ボーリング調査費用 ■全館空調設置(エアコン含む)
■現場管理費
表示金額に含まれていないもの
■地盤改良費用 ■カーテン ■ウッドデッキ ■カーポート ■外構工事
こんな方におすすめ
■ ご夫婦+お子さま2人のお家
■ ご夫婦+お子さま1人+ゲストルー ムのお家

2,901 万円 (税込)_
施工面積 ⋯ 124.29㎡ (37.6坪)
収 納 ⋯ 17.80㎡ (5.38坪)
収 納 率 ⋯ 16.92% (00.0坪)
表示金額に含まれているもの
■各申請費用 ■ボーリング調査費用 ■全館空調設置(エアコン含む)
■現場管理費
表示金額に含まれていないもの
■地盤改良費用 ■カーテン ■ウッドデッキ ■カーポート ■外構工事
こんな方におすすめ
■ご夫婦+お子さま2人+ゲストルー ムのお家
性能
家計に優しく、
家族を守る最高等級の性能がここに
断熱、気密、耐震すべてにおいて国が定めた最高等級を取得。
万が一の自然災害からも、「しっかりと家族を守る。」性能の高さは、見えないところで確かな安心を届けて くれます。
外皮平均熱貫通率
UA値
0.34W/㎡・K以下
気密性能
C値
0.4c㎡/㎡以下
エネルギー消費量
等級6
HEAT20
G2
耐震等級
最高等級3
外皮平均熱貫通率
UA値
0.34W/㎡・K以下
気密性能
C値
0.4c㎡/㎡以下
エネルギー消費量
等級6
HEAT20
G2
耐震等級
最高等級3
外皮平均熱貫通率
UA値
0.34W/㎡・K以下
気密性能
C値
0.4c㎡/㎡以下
エネルギー
消費量
等級6
HEAT20
G2
耐震等級
最高等級3
光熱費の簡易シミュレーション
27.50坪3LDKの住まい
全館空調で冷房費と暖房費
月平均約6,500円
冷暖房効率が高く、
光熱費を抑えながら家中を快適に保ちます。

![上越の注文住宅ハウスメーカーWood Village [横尾建設工業]](https://yoko-kensetsu.com/wp-content/uploads/2024/06/logo_new_white.png)











